Whether it’s your dream home, a new getaway spot or an investment property, we’re here to help you find it. With personalized guidance and a deep understanding of Southwest Florida’s market, we’ll make your search simple, exciting, and tailored to your needs.
Feel free to browse here with LIVE, UP-TO-DATE MLS DATA.
You can also reach out and let us know EXACTLY what you’re looking for, and we can hone in the search process for you.
Let’s take this journey together…



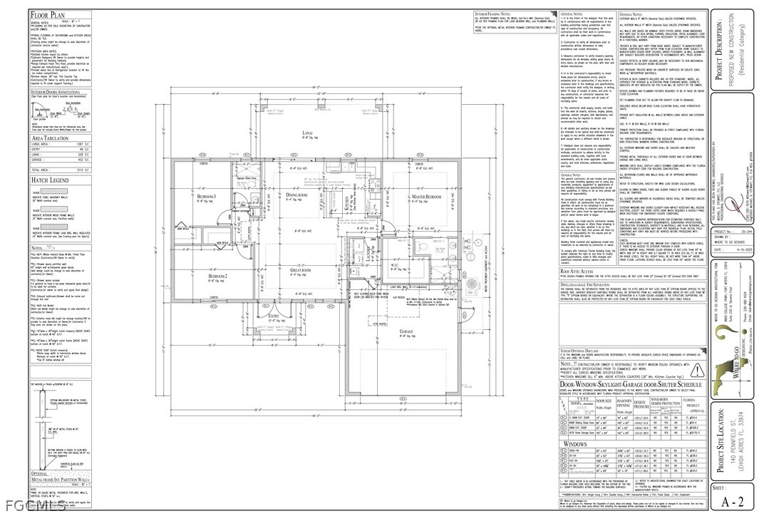
Survey and approved model plan already completed — this lot is READY TO BUILD. Located in one of the fastest growing areas of Lehigh Acres (33974), this property offers an excellent opportunity for builders or buyers looking to save time and upfront costs. The sale includes a complete architectural package for a 3-bedroom, 2-bathroom single-family home with a 2-car garage, along with survey, architectural plans, septic permit, city permit fees, and impact fees already paid. Buyer avoids months of paperwork, permitting delays, and administrative risk. Conveniently located near Southwest Florida International Airport, Fort Myers beaches, I-75, SR-82, shopping centers, schools, restaurants, medical facilities, and JetBlue Park. This is one of the most sought-after zip codes in Lehigh Acres and a prime opportunity to start construction immediately.
| 5 days ago | Listing first seen on site | |
| 5 days ago | Listing updated with changes from the MLS® |
Did you know? You can invite friends and family to your search. They can join your search, rate and discuss listings with you.